Alla ricerca di determinate funzionalità
Ricerca avanzata
In affitto UFFICIO In Evidenza

UFFICIO in zona Emilia all’Angelo a Reggio Emilia

1.950€

Emilia all'Angelo

Panoramica

|
Property ID : AC174
In Evidenza
Dimensione
300 Mq

Descrizione

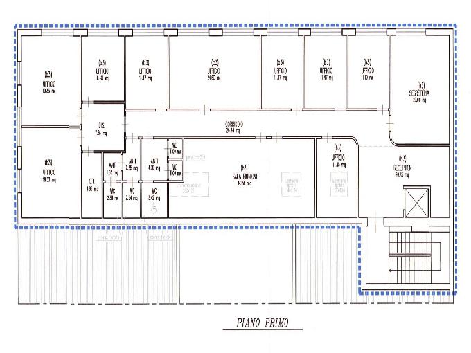
Vicinanze Centro Storico – Bellissimo ufficio di rappresentanza di 300 mq ubicato in posizione strategica di forte passaggio adiacente a banche, bar e ristoranti, ottimamente collegato a tutti i servizi. L’asset si compone da ampi e luminosi locali con reception, bagni, terrazzo e area break. L’edificio ? singolo di recentissima ristrutturazione, munito di posti auto privati oltre ad un ampio parcheggio pubblico. Incaricato di riferimento: Liliana 333/8036036

AC174

Additional Details

  • Piano: 1
  • Piani Edificio: 2
  • Ascensore: No
  • Riscaldamento: TELE AUTONOMO
  • Classe Energetica: D

Properties Common Note

This is a common note that can be displayed on all properties but controlled from one simple option.

Property on Map

Schedule A Tour

Discover your dream property

Immerse yourself in the captivating ambiance of our properties. Book a personalized tour to explore the exquisite beauty and unique features of our property.

Our knowledgeable staff will guide you through the property, answering any questions you may have.

Mortgage Calculator

30 Anni Fisso
3.5% Interest
  • Principal and Interest

Similar Properties

22
20

UFFICIO in zona Aeroporto a Reggio Emilia

UFFICIO

3.000€

2
315 Mq

Aggiunto: 11 Ottobre 2024

4

Compare Properties

Compare
You can only compare 4 properties, any new property added will replace the first one from the comparison.